Тумба під акваріум своїми руками

Навіщо потрібна спеціальна тумба під акваріум
Зміст статті

УВАГА! Не ставте величезний акваріум на стіл або інші поверхні, не призначені для важких предметів. Потрібно пам'ятати, що вода, додаткові аксесуари для риб ще більше обтяжують скляну ємність.
Проект меблів
Для початку потрібно скласти креслення. У ньому потрібно врахувати абсолютно кожну деталь. Далі слід дотримуватися всі етапи покрокової інструкції:
- Зробіть заміри вашого акваріума: довжина, ширина і висота. Їх потрібно записати в окремий аркуш.
- Огляньте будинок і подумайте куди б ви хотіли розмістити бажану меблі. Якщо це вже зроблено, то сядьте там, де буде добре видно акваріум.
- Тепер потрібно обчислити точну висоту тумби. Уявіть найбільш комфортне для очей розташування і почніть міряти від цієї точки. Не забувайте про ніжки для меблів, візьміть їх у розрахунок (висота коливається в значеннях від 50 мм до 100 мм максимум).
- Стільниця повинна трохи перевищувати розмір дна акваріума або дорівнювати йому. Це дасть вам повну впевненість в тому, що нічого не впаде. Збільшувати ширину потрібно всього лише на пару міліметрів.
- Глибину слід розраховувати також за значеннями акваріума. Робіть її на кілька міліметрів більше — ніби робіть ту ж саму ємність, але трохи більше.
- Тепер вам слід звернути свою увагу на кількість перегородок усередині тумби. Вони потрібні вам, щоб додатково підтримувати поверхню тумби. Листовий матеріал з дерева (ДСП) слід підігнати під розміри тумби. Ставте їх через кожні тридцять сантиметрів. Листи беріть не менше 16 мм в товщину. Близько 20 мм підійде ідеально.
- Дверцята і горизонтальні полички робляться будь-якими.
- Задня стінка повинна бути виключно з деревно-стружкової плити і не тонше 22 міліметрів. Таким чином, тумба зможе утримати будь-яку вагу. Її необхідно встановлювати між бічними стінками меблів, щоб не допустити руйнування конструкції.
- Ніжки робіть під кожну вертикальну перегородку.
Вибираємо матеріали
Купуючи потрібні матеріали, ви повинні пам'ятати про те, що меблі в будь-якому випадку буде контактувати з водою. Для зовнішнього оздоблення добре підійдуть ламіновані ДСП або МДФ (мелкодисперсная фракція). Каркас слід робити металевий або з міцного дерева. Стільниця повинна повністю підходити за всіма параметрами. Товщина її вибирається так, щоб поверхня з часом не прогнулася під вагою (чим більше, тим краще). Зверніть свою увагу на матеріал ніжок. Вони можуть бути зі сталі або дерева — для довготривалого збереження міцності. Декорування залежить від індивідуальних смакових уподобань.
Процес виготовлення тумби під акваріум своїми руками
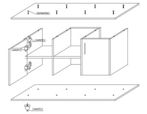
Розібравшись з матеріалами і кресленням, залишається заздалегідь підготувати інструменти, щоб вони знаходилися поруч у процесі роботи: шуруповерт, єврогвинти, олівець, лінійка, відповідні свердла. Тепер ви повністю готові до збирання:
- Першим ділом потрібно розпиляти ДСП. Також можна зробити під замовлення. Другий спосіб значно полегшить працю і заощадить час. Ще ви можете попросити за окрему суму приробити кромки або ж зайнятися цим самим. Досить порвати стрічку такої довжини, щоб по кінцях вона трохи звисала. Потім щільно притисніть рукою і добре проведіть праскою. Візьміть ганчірку, протріть місце кромки з деяким тиском руки для кращого приклеювання. Потім просто приберіть зайву кромку з боків зрізу.
- Починаємо будувати каркас. Тут слід бути дуже уважним, щоб ніде не було нахилів і все було ідеально рівно. Деталі з'єднувати між собою треба на совість. Не відхиляйтеся від креслення і робіть все точно за нього, інакше меблі деформується і створить величезні проблеми.
- На основу закріпіть бічні і задню стінки, а після вже перегородки. Приготуйте єврогвинти (конфірманти), для них потрібно заздалегідь зробити отвори. Перед початком закладення пройм переконайтеся в тому, що вони розташовані рівне. Візьміть дриль і просвердлите складові частини. При виборі свердла для дрилі необхідно орієнтуватися на розмір конфірмантів — свердло повинно бути менше на один міліметр.
- Приступаємо до прикріплення стільниці. Спочатку поставте її зверху і встановіть потрібний рівень, щоб не було відхилень в яку-небудь сторону. Олівцем зробіть позначку і створіть відповідні отвори.
- Приступимо до встановлення навісних дверцят. Вони прикручуються спеціальним навісами для меблів. Щоб вони відкривалися і закривалися плавно, необхідно закріпити доводчики.
- Останнім етапом прилаштовують ніжки з подпяточниками, завдяки яким при легкому пересуванні можна уникнути подряпин підлогової поверхні. Покладіть тумбу бічною поверхнею на підлогу. Закріпіть їх по краях і під вертикальні перегородки. Це забезпечить вам міцність складання на довгий час.
Тепер залишається лише поставити конструкцію на заздалегідь вибране місце. Там повинні бути розетки, щоб підключити додаткові прилади для акваріума. Спочатку слід встановити саму тумбу, а потім акваріум на неї — разом переміщати їх буде важко. Все робиться дуже просто. Налаштовуйте себе на позитивну хвилю і будьте впевнені у своїх діях. Тільки тоді ви досягнете успіху!

