Як зробити сейф

Зараз існують різні моделі. Найсучасніші оснащені електронною системою розпізнавання біометричних даних. В залежності від цінності речей, які необхідно сховати, рівень захисту теж змінюється. Але часом буває так, що сейф у магазинах коштує дорожче, ніж самі предмети, що зберігаються в ньому. У такому випадку варто задуматися над самостійною розробкою такої конструкції, яка стала б надійним сховищем для ваших коштовностей і обійшлася недорого. Ми пропонуємо вам самим виготовити сейф.
Вимоги до сейфа
Такі пристрої призначені для виконання специфічних завдань, тому до їх конструкції існують певні вимоги. Насамперед сейфи використовуються з метою забезпечити збереження майна. Тому для їх створення потрібні спеціальні креслення і матеріали.
Зберігання зброї в сейфах є не тільки примхою власника, але й обов'язковою умовою у відповідності з законом. Саме такі сейфи є найбільш універсальними і їх легко можна зробити самостійно. У даній статті ми опишемо кілька способів створення та встановлення конструкцій для зберігання і поділимося покрокової інструкцією виготовлення.
ДОВІДКА! Для зберігання зброї необхідна спеціальна ліцензія.
У будь-якому випадку пристосування такого роду повинні володіти рядом обов'язкових параметрів і характеристик.
Здебільшого будь-яка подібна конструкція повинна бути:
- Стійка до впливу несприятливих факторів навколишнього середовища (незважаючи на те, що сейф знаходиться в будинку).
- Відповідати всім вимогам і правилам установки, про яких прописано в статтях закону.
- Мати замок.
- Володіти достатньою місткістю — у випадку з зброєю з розрахунку не менше 30 см в ширину на одиницю.
Залежно від моделі, вимоги можуть коригуватися і потрібно робити акцент на тому, що потрібно саме вам. В магазині досить легко знайти потрібну модель, але коштують вони часто невиправдано дорого. Тому ми навчимо вас, як в домашніх умовах розробити креслення і сконструювати такий шафка з секретом.
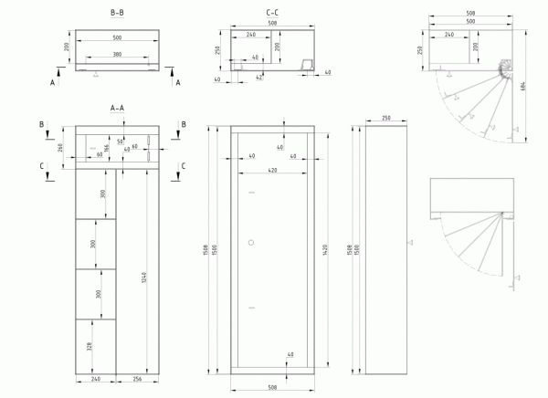
Визначення розмірів і креслення
Першим і найважливішим етапом буде визначення габаритів сейфа. Для цього треба уважно вибрати місце і спосіб установки майбутнього виробу. Дуже важливо, щоб приміщення відповідало всім основним вимогам і було надійно приховано від сторонніх очей. Для маскування існує кілька основних прийомів.
Самим надійним і зручним варіантом буде вбудовування скриньки в меблевий гарнітур або стіну. Для цього потрібно зняти розміри меблів і додати в конструкцію спеціальну прибудову.
ВАЖЛИВО! При такому способі важливо враховувати, що майбутня конструкція повинна мати відстань між внутрішніми і зовнішніми стінками 1-2 см і стояти строго перпендикулярно поверхні підлоги.
Інший найбільш простий варіант — маскування за допомогою декоративного обклеивания плівкою, що імітує колір деревини.
Шафа може бути зроблено будь-якої довжини і форми за індивідуальними вимірами. Він може бути габаритний або невеликого розміру — в залежності від призначення. Елементи, з яких складається виріб потрібно відобразити в схемі:
- Каркас майбутнього скриньки.
- П'ять стінок, які вставляються в каркас строго за розміром без проміжків і щілин.
- Дверцята.
- Місце кріплення петель і замку.
- Ніжки для шафи.
УВАГА! Чим крупніше масштаб креслення, тим більш докладно можна показати всі важливі деталі. Бажано робити схему в кількох проекціях, зібраному і розібраному вигляді.
Вся конструкція являє собою металевий ящик з ребрами жорсткості, обшитий зсередини листами заліза. Додатковими елементами є замок, петлі з кріпленнями і ніжки.
Як зробити сейф своїми руками
Після того як ви визначилися з вибором місця і накреслили остаточний план готового виробу, можна приступати до його виготовлення. Для робіт знадобляться наступні матеріали та інструменти:
- Куточок для створення каркаса. Загальна довжина виходить складанням довжин всіх сторін ящика. Краще взяти з запасом, оскільки в процесі зварювання і кріплення може знадобитися трохи більше матеріалу.
- Листове залізо оптимальної товщини 3-5 мм.
- В залежності від висоти майбутнього виробу потрібно 2-3 петлі для дверцят.
- Кріплення для полиць.
- Ніжки.
- Зварювальний апарат.
- Болгарка по металу.
- Рівень.
Порядок виконання досить простий і здійснити його може майже кожен. В процесі роботи періодично звіряйтеся з планом, щоб не допустити помилок в конструкції:
- За допомогою болгарки отпиливаем за розмірами листове залізо і куточки.
- Зварює куточки між собою для створення основи. Повинен вийти порожній ящик.
- Зсередини приварюють стінки. Між деталями не повинно залишитися зазорів!
- До дверке додаємо петлі, а потім приєднуємо її до основного корпусу.
- Додаємо до сейфа ніжки. Всі дії виконуємо під контролем кута нахилу за допомогою рівня. Це важливо, оскільки неправильно поставлений шафа не зможе нормально закриватися і такий виріб буде марним.
ВАЖЛИВО! Всі роботи виконуйте, дотримуючись техніки безпеки, і користуйтеся засобами індивідуального захисту.
Сейф майже готовий, залишається зробити головну деталь. В якості замку рекомендується використовувати звичайний або кодовий навісний. Ці варіанти прості в установці, недорогі і досить надійні. Поставте сейф у заздалегідь вибране місце і встановіть суворо вертикально. Тепер все готово, можете прибирати свої особисті речі і не турбуватися за них. Тепер вони надійно захищені.





